Details

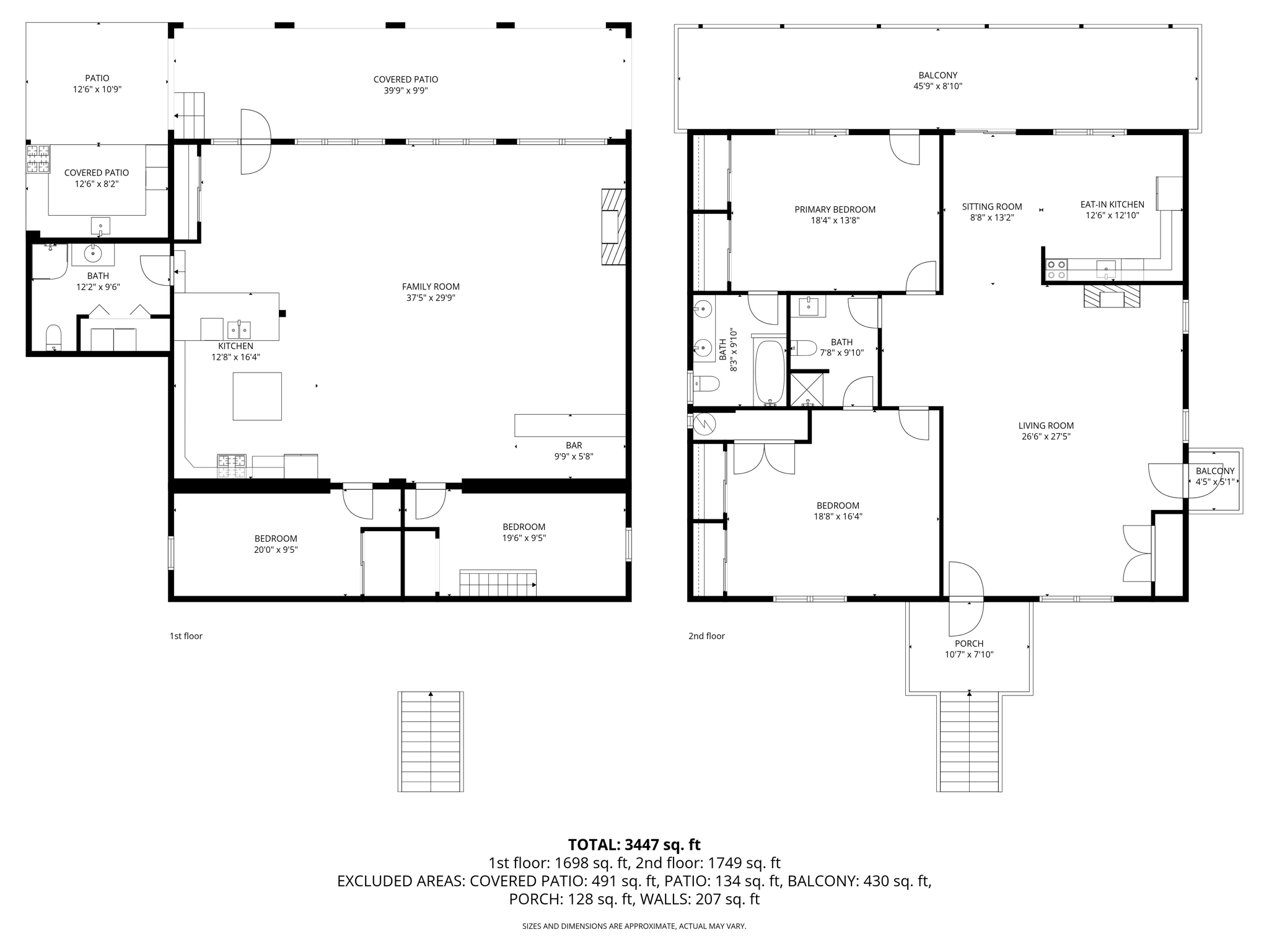
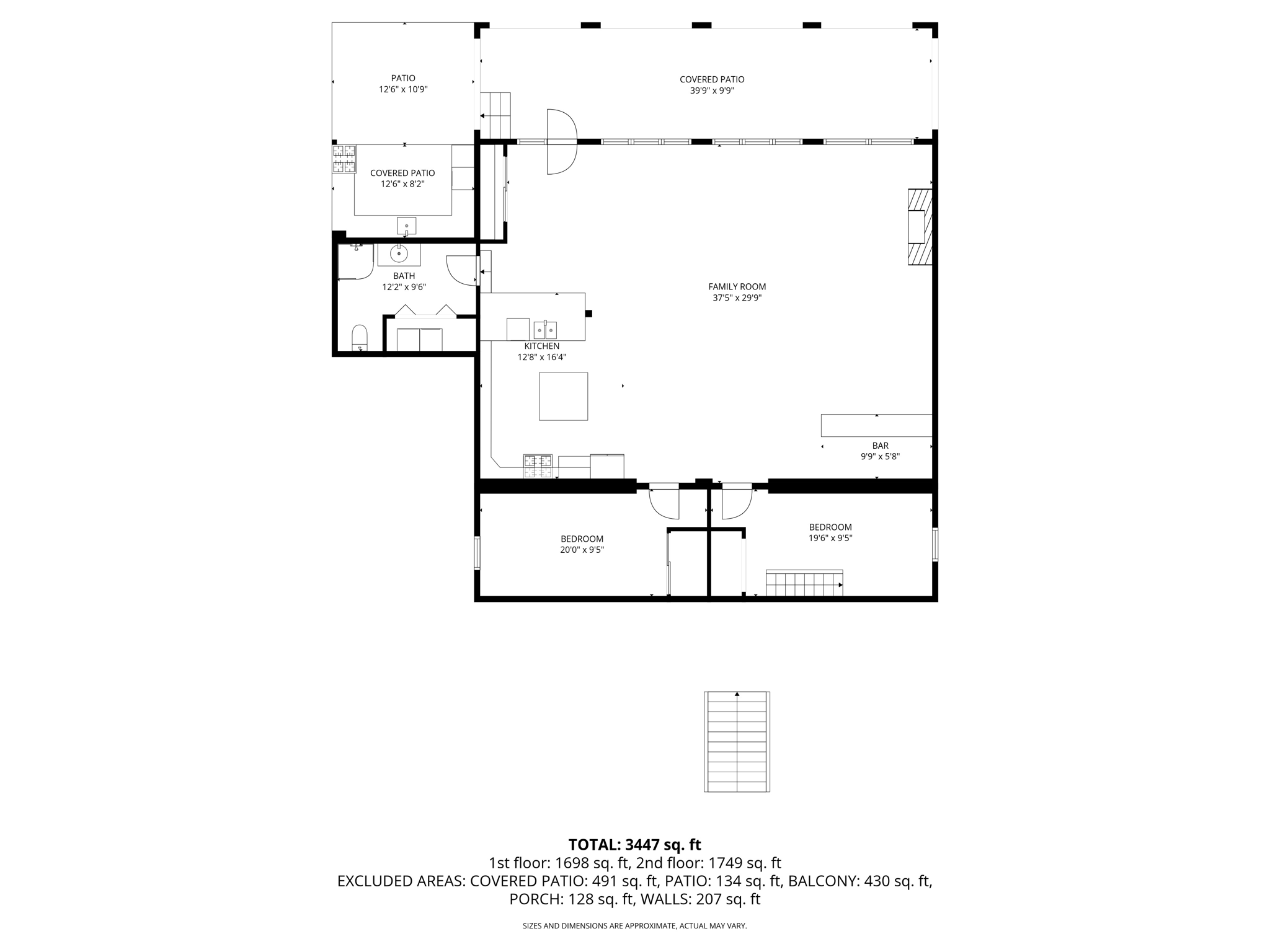
Enjoy Crescent Lake—a 15,900-acre lake connected to the St. Johns River via Dunn's Creek. This unique two-story home offers two separate living areas, perfect for family or guests. The upstairs features two bedrooms, two baths, a spacious living room, and a kitchen with luxury vinyl plank flooring and a gas log fireplace. From the kitchen and covered patio, take in breathtaking lake views while dining or relaxing. The lower level boasts an open-concept great room with a gas log fireplace, bar, and pool table. The expansive windows overlooking the lake bring the view of the lake inside. It includes two smaller bedrooms and one bath for guests to have their own space. The property has concrete bulkhead and a covered boat house with an opening (32' x 14') for a oversized boat. Please measure if your boat is close to this size. What a buy on Lake Crescent, this won't last long!!!

  • $489,900
  • 4 Bedrooms
  • 3 Bathrooms
  • 3,587 Sq/ft
  • Lot 0.33 Acres
  • Built in 2003
  • MLS: 2120478

Images

Floor Plans